Të dhëna mbi projektin
-
Studio
INSTITUTI KOMBËTAR I TRASHËGIMISË KULTURORE
-
Faqja e Studio
-
Arkitekti
Lisjan Tusha, Brixhita Deda, Andoniu Deli
-
Faqja e Arkitektit
-
Tipologjia
Cultural, Educational, Design
-
Viti i ndërtimit
2024-2026
-
Sipërfaqja
First floor: 83 m2; Second floor: 130 m2; Third floor: 114.7 m2
-
Kate
3
-
Ekipi
Lisjan Tusha
Brixhita Deda
Andoniu Deli
Përshkrimi
Musine Kokalari House (Farie Duro)
The Musine Kokalari House (Farie Duro) is a 19th-century building located within the Historic Centre of the City of Gjirokastër, in the Palorto quarter. It is designated as a Cultural Monument, Category I, declared by Decision No. 1886, dated 10.06.1973.
The building is a tower-type dwelling (kullë) with a single wing, developed over three storeys. It is constructed with stone masonry walls and covered by a timber roof structure with stone slab roofing.
At ground-floor level, on the eastern side, there is an entrance which leads to the internal spaces of the building.
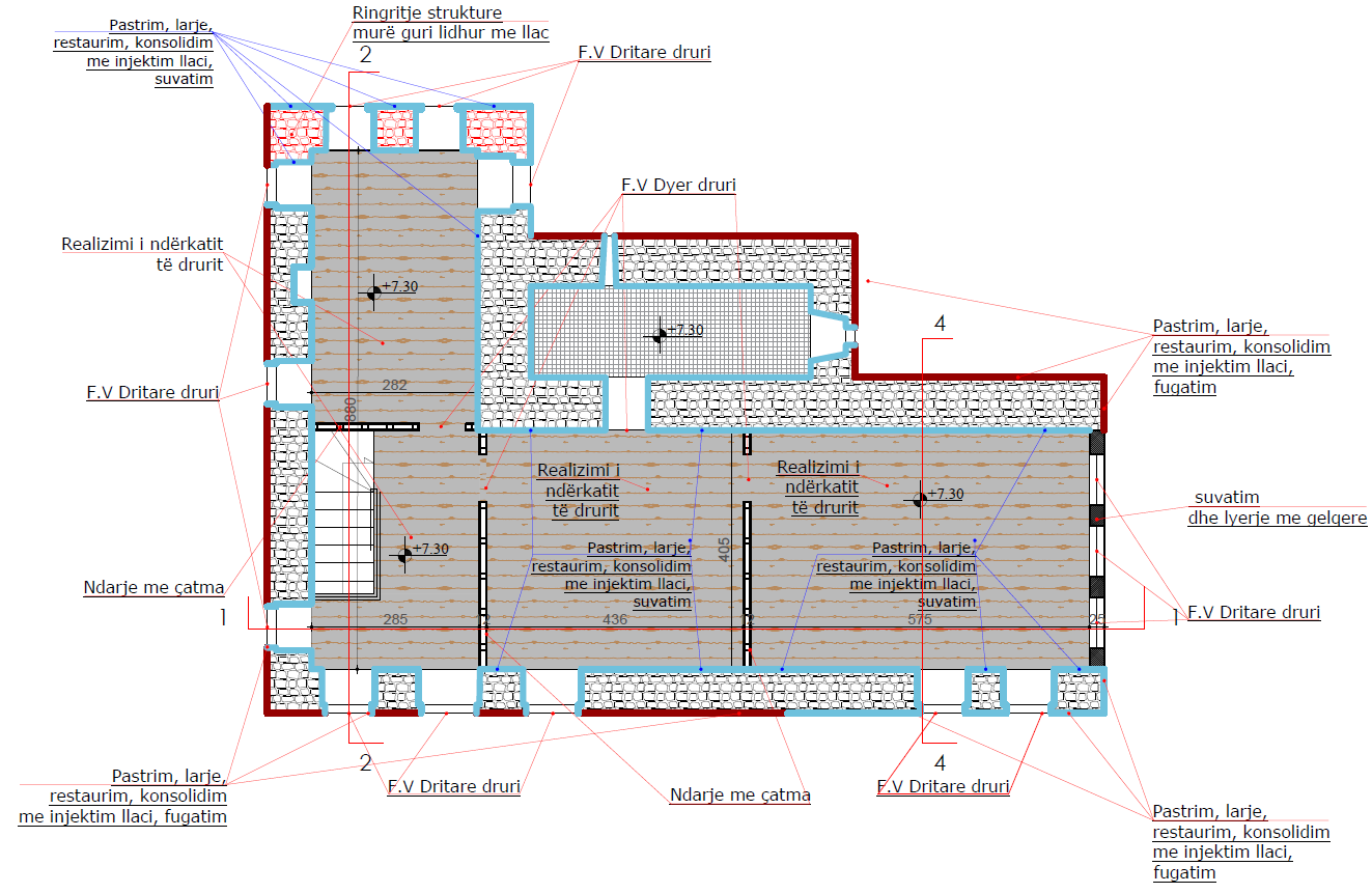
RESTORATION INTERVENTIONS
The proposed restoration interventions are conceived as comprehensive interventions, including:
Structural strengthening measures to ensure the static and seismic stability of the building;
Architectural interventions aimed at the reconstruction and recovery of lost architectural values;
Finishing works;
Interior interventions for adapting the building to its new function.
Following the completion of the restoration works, the building will be converted into a library/museum, intended for use by the local community, tourists, schools, universities, and other visitors.
Main Restoration Interventions Include:
Mechanical cleaning of masonry surfaces, washing with water, and repointing of stone walls;
Restoration of stone masonry using lime-based mortar (1:3) with the stitch-and-repair (shqep–qep) technique;
Restoration of stone arches with carved stone up to a height of 3 m, using M-15 mortar;
Plastering, limewashing, and finishing with lime-based materials;
Restoration of cracks in stone masonry using the injection technique (crack cleaning, water washing, injection with lime mortar 1:3);
Structural stitching using stainless steel rods (linear stitching);
Consolidation of wall heads with 1–2 courses of stone bonded with lime mortar (1:3);
Construction of a roof (approx. 10 m²) covered with stone slabs;
Construction of wooden staircases;
Construction of timber-lath (çatma) structures with wooden framework;
Rebuilding and raising of stone masonry walls;
Supply and installation of doors and windows;
Installation of decorative and simple wooden floors and ceilings;
Construction of new mezzanine floors;
External site and landscaping works;
Installation of hydraulic, electrical, and fire protection systems (MNZ).

Shqip