Të dhëna mbi projektin
-
Studio
Pacarizi
-
Tipologjia
Residential Architecture
-
Statusi
Completed
-
Viti i ndërtimit
2025
-
Sipërfaqja
350 m²
-
Photography
Gezim Pacarizi, Lundrim Karameta
Përshkrimi
Shtëpia e Kuqe
Pacarizi Studio
www.Pacarizi.com, [email protected]
Konteksti
Shtëpitë unifamiljare përfaqësojnë më shumë se 50% të të gjitha ndërtesave në Shqipëri. Jeta familjare ka ndryshuar. Modelet ekzistuese, një përzierje mes traditës dhe bahskëkohores, nuk i përgjigjen më sfidave të reja.
Plakja e popullsisë, emigrimi i brezave të rinj dhe rritja e lëvizshmërisë kanë zbehur dallimin mes banesës së përhershme dhe asaj të pushimit, mes qytetit dhe periferisë.

Shtëpia e Kuqe synon t’i përgjigjet kësaj teme, përmes një arkitekture që kupton dhe shfrytëzon potencialin dhe kushtet klimatike të zonës. Kjo shtëpi me kosto të ulët dhe teknologji të thjeshtë ofron një shembull të një ekonomie ndërtimi lokale dhe qarkore.
Cilësia e saj arkitekturore qëndron në rezistencën ndaj shoqërisë konsumatore, duke ofruar një mjedis jetese të rehatshëm dhe të shëndetshëm. Arkitektura bëhet një ftesë për të kuptuar dhe shijuar thjeshtësinë e jetës në fshat dhe dhuratat e natyrës, ndërsa në heshtje shndërrohet në një portret të njerëzve që jetojnë brenda saj.

Arkitektura
Shtëpia është rezultat i barazpeshës mes jetesës e jashtme dhe të brendshme në kopshtin e një fshati bregdetar me ullinj, shegë dhe pemë portokalli.
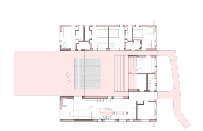
Planimetria e katit përdhe
Ky oborr, qendra e shtëpisë, pjesërisht e mbuluar, funksionon si një hapësirë e vërtetë jetese verore, duke lidhur të gjitha pjesët e shtëpisë dhe duke ftuar banorët të shijojnë kopshtin dhe pamjet.
Kjo hapësirë teatrale lejon një arkitekturë që shikon brenda vetes. Ajo që sheh përmes dritares është një peizazh, një pemë, por edhe vetë arkitektura. Kjo aftësi e arkitekturës për të qenë e mjaftueshme në vetvete bëhet tema qendrore e projektit. Volumi ditor dhe i dhomave të gjumit është organizuar rreth një oborri të hapur me pishinën në qendër. Shkallët monumentale vazhdojnë hapësirën e oborrit deri në nivelin e çatisë, duke hapur pamje drejt peizazheve të afërta dhe të larg
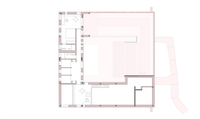
Planimetria e katit të parë
Qëndrueshmëria
Struktura bazë është prej betoni. Muret e jashtme janë ndërtuar me tulla lokale të zbrazëta me trashësi 46 cm.
I gjithë izolimi termik është realizuar me një përzierje kashte, rëre dhe gëlqereje me hirrë si lidhës. E njëjta përzierje është përdorur për të gjitha suvatimet. Çimentoja është zëvendësuar me hirrë.
Oksidi i hekurit të kuq është përzier në material dhe është aplikuar në të gjithë sipërfaqet. Kombinimi hirrë–gëlqere është një material “i gjallë” pothuajse i përjetshëm, çka do të thotë se shtëpia nuk do të ketë kurrë nevojë për rilyerje.
Prerje gjatësore nga oborri
Dyshemetë janë prej mermeri lokal me nuancë rozë, pjesërisht dhe me parket bungu. Hirrën e kemi blerë nga fermat përreth ndërsa gëlqeren e kemi prodhuar vetë.
Ndërtimi pothuajse nuk gjeneroi mbetje. Dritaret e mëdha fikse kufizojnë pamjet dhe lejojnë hyrjen e dritës, ndërsa vetëm dritaret e vogla hapen për ventilim natyror. Ekipet lokale prej katër deri në pesë punëtorë ndërtuan shtëpinë, e cila u thjeshtua maksimalisht për të rritur hapësirën e përdorshme dhe për të ulur koston e pajisjeve të shtrenjta.
Qëndrueshmëria u arrit përmes thjeshtësisë, duke ndërtuar lokalisht, duke përdorur materiale natyrore dhe duke krijuar një shtëpi që klientët e duan vërtet.
Prerje gjatësore nëpër hapësirën e ditës
Vendndodhja
Lezhë, Albania

English